
Okapové žlaby s ocelovou konstrukcí jsou zásadní součástí systému odvodnění střechy budovy. Jejich primární funkcí je shromažďovat dešťovou vodu ze střechy, směřovat ji do svislých trubek a následně ji vypouštět do venkovního kanalizačního systému, čímž zabraňuje přímé erozi zdí nebo promáčení základů. Design a instalace produktu Liweiyuan se vyznačují vysokou pevností a nízkou hmotností, což zajišťuje hladký odvod vody a mimořádnou odolnost.
Okapové žlaby s ocelovou konstrukcí jsou zásadní součástí systému odvodnění střechy budovy. Jejich primární funkcí je shromažďovat dešťovou vodu ze střechy, směřovat ji do svislých trubek a následně ji vypouštět do venkovního kanalizačního systému, čímž zabraňuje přímé erozi zdí nebo promáčení základů. Design a instalace produktu Liweiyuan se vyznačují vysokou pevností a nízkou hmotností, což zajišťuje hladký odvod vody a mimořádnou odolnost.
Liweiyuan's Steel Structure Gutter je vyroben z materiálů odolných proti korozi a nárazu.
Náš výrobek je žárově zinkovaný, nabízí vynikající odolnost proti korozi, nízkou cenu a dlouhou životnost. K dispozici v tloušťkách 1,5-2,5 mm, je vhodný pro většinu aplikací.
Tento produkt je vyroben z nerezové oceli a nabízí odolnost proti korozi a je zvláště vhodný pro pobřežní nebo vlhké prostředí. Dodává se v tloušťkách 1,0-2,0 mm, nabízí vyšší cenu, ale dlouhou životnost.
Naše ocelové výrobky s barevným povlakem jsou založeny na pozinkované oceli, potažené povlakem odolným vůči povětrnostním vlivům, jako je polyester nebo fluorokarbon, pro odolnost proti korozi a dekorativní efekty. Jsou dostupné v tloušťkách 1,2-2,0 mm a jsou vhodné pro budovy vyžadující vysokou úroveň estetického vzhledu.
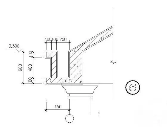
Konstrukční tvar okapu s ocelovou konstrukcí je třeba přizpůsobit sklonu střechy a provedení okapu. Mezi běžné typy patří U a V. Proces instalace je následující:
Naše okapové žlaby s ocelovou konstrukcí používají úhlové ocelové okapové konzoly k jejich upevnění k okapovým trámům nebo vaznicím ocelové konstrukce. Rozteč konzol je 600-1000 mm, aby bylo zajištěno rovnoměrné rozložení napětí napříč okapem.
Hotové žlaby jsou předem dimenzovány a připojeny na místě pomocí spojek nebo svařování. Na spoji mezi okapem a střešní krytinou je vyžadován tmel.
Můžeme instalovat lemování nad střešní krytinu. Spodní konec žlabu by měl být umístěn pod střešní krytinu a utěsněn tmelem. Ve spodní části žlabu by měly být vytvořeny odtokové otvory, především pro napojení na stoupačky dešťové vody.
Náš výrobní proces ocelových žlabů zahrnuje řezání podle rozměrů výkresu, ohýbání, lakování, kontrolu hotového výrobku, balení a přepravu. Okapové žlaby z ocelové konstrukce Liweiyuan jsou navrženy a instalovány tak, aby zajistily odolnost proti korozi, hladké odvodnění a trvanlivost a zajistily účinné odvodnění.